81M2 TIN HOUSE, CO.CLARE
A compact timber frame house with metal clad roof and walls on a gentle sloping south facing field in east County Clare.
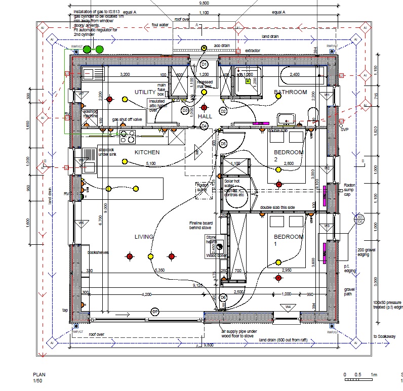
An A2 rated house designed for a self-builder who wanted to build with little fuss and cost using sustainable materials of low embodied energy and when built would require minimal energy input and provide maximum comfort. Sitting on a passive raft the house is constructed using a prefabricated timber frame structure, its walls filled with 300mm of cellulose insulation and 400mm in the roof.
The roof and walls are clad with a rain screen of corrugated steel sheeting. Its layout is a simple square plan with a small entrance hallway entered from the north, a utility to one side and bathroom opposite leading into the main south and west facing family room off which two bedrooms facing east.
















