BELMONT CHAPEL
Belmont Chapel and Cloisters, located in Galloping Green, was designed in 1886 by architect G.C Ashlin esquire (FRIBA) for the Oblate Fathers of the Missionary Oblates of Mary Immaculate as a chapel extension to the Belmont House (built in 1790, demolished 1975). Today the Chapel is attached to Belmont Residential Nursing Home.
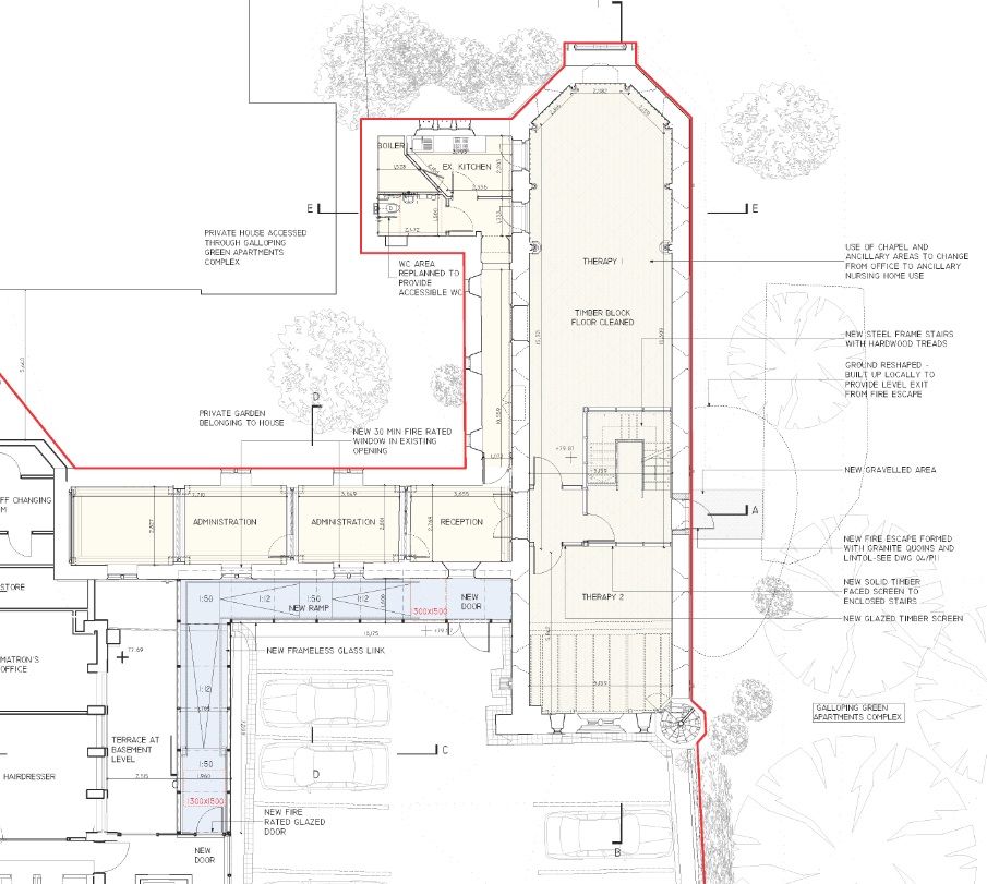
The Chapel is part detached 8-bay single storey, single cell, gable fronted Gothic Revival chapel building and 4-bay single storey cloister. Over the period since it was built in 1896 it has undergone various modifications including the extension of the nave and gallery, the reduction of the cloister and internal modifications however the essence of the chapel with its elegant nave remains intact. It is now in use ancillary to the 7-storey nursing home which dates from the 1990s with subsequent extensions and modifications.
We have carried out two architectural heritage impact assessments for planning applications related to Belmont Nursing Home. The first planning application was made by O’Briain Beary Architects in 2018 for a series of modifications, extensions, conservation works and change of use to Belmont Chapel and Cloister; the construction of a new buildings in proximity to the chapel and extension to the nursing home itself. The second planning application was made by Denis Williams Design Services Architects and Engineers in 2019 for a series of extension and alterations to Belmont Nursing Home itself.
Dorman Architect’s Architectural Heritage Impact Assessments included historical research; a detailed inventory with photographic record; a methodology schedule for all repair and re-instatement works; a comprehensive schedule of measures to be employed during the works to protect the building against fire risk or accidental damage and/or deliberate damage due to theft or vandalism; an appraisal of the proposed works and concluding assessments.
















