DARTRY
A rigorous ecological approach was taken for this new family kitchen dining extension from early in concept design through to its implementation on site.
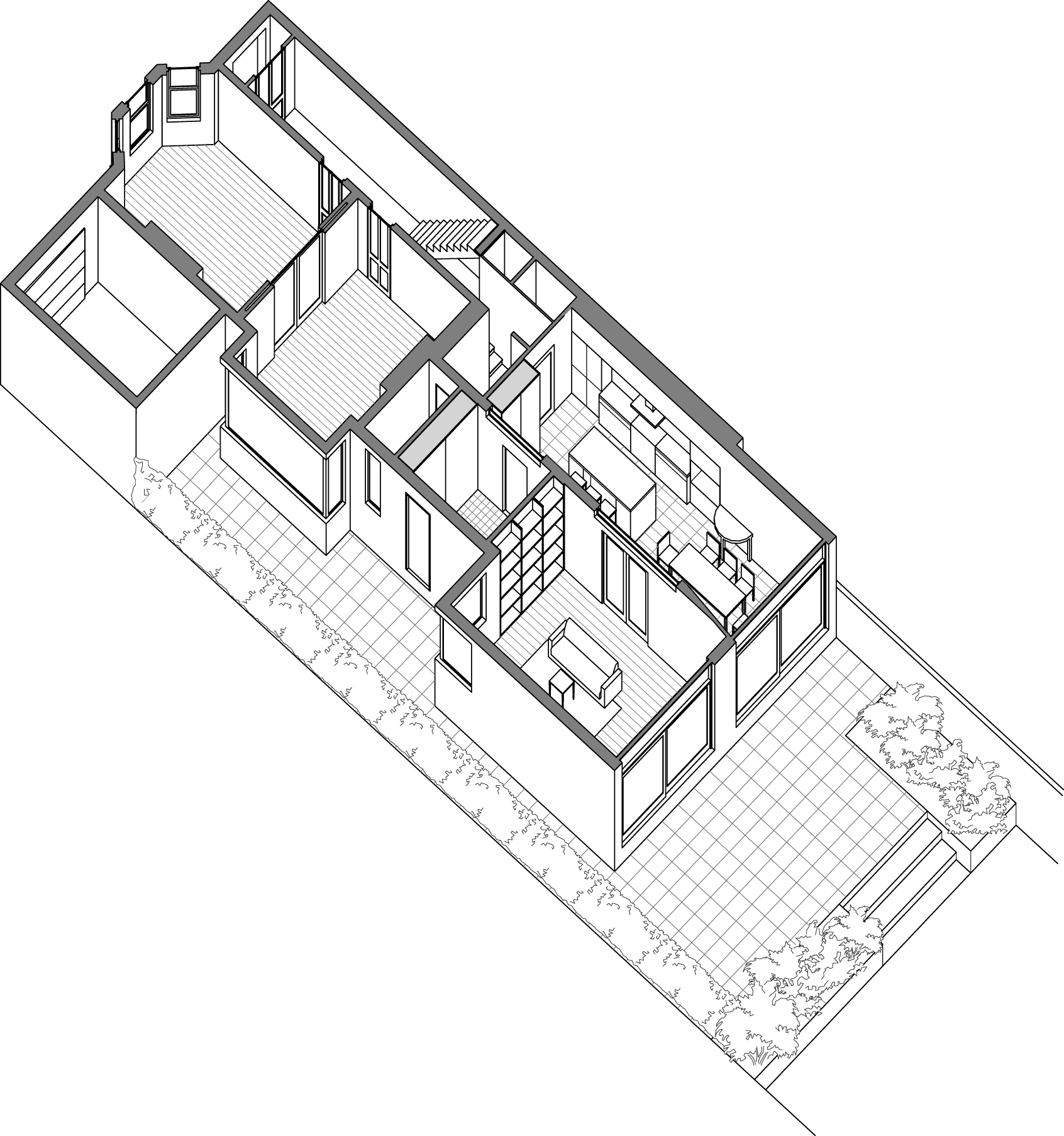
The new extension replaced a smaller timber framed extension which the family had out grown allowing for a larger kitchen/dining, family, utility and bath. Due to the tricky north east orientation of the back of the house we made extensive use of skylights and large sliding doors orientated to best capture morning and evening light.
In contrast to the red brick of the main house the extension is timber framed and clad with western red cedar. Over time the cedar is naturally weathering to a similar soft grey as the lime based plaster above. The breathable timber framed walls are 250 deep and filled with natural Hemp insulation. Along with triple glazed glazed screens and roof lights the extension is thermally comfortable, airtight and naturally breathable. Its design, detailing and construction means that there is little heat loss making it economical to heat and light. Natural paints used internally are an integral part of its design ensuring a pleasant internal environment free from chemicals.
Client comments The rooms are very well designed, stylish, and pleasing to spend time in…light is important to us, and John is really creative at bringing the maximum light into the rooms, with very clever use of windows. We are also delighted that … the new rooms are very warm, and our heating bills have fallen significantly. John is very easy to work with, attentive to detail, and very thorough.














