PALMERSTON PARK TEAROOM – DUBLIN 6
This new tearoom is located in Palmerston Park, a significant 19th century semi-elliptical designed urban landscape. Formerly a 1970’s Dublin City Council Parks Depot. Howley Hayes Architects proposed a new use as a café in their Conservation Management Plan for the Park. A2 Architects were engaged to design the new café. Following the grant of Planning Permission Dorman Architects won the public tender in 2022 to develop design and realise the project.
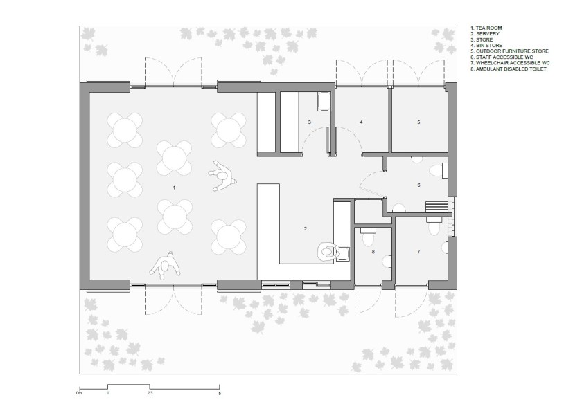
The Tearooms comprise a generous light infused café room which opens out to a sunny west facing courtyard but also gets the benefit of the morning sun through east facing glazed screen. Sunlight streams through a long roof light over the café permeating through white painted exposed timber joists and infuses the café in the soft glow from the light green panelled walls. A servery is tucked in under the lower ceiling with ancillary rooms behind. Two public toilets open directly onto the courtyard-one universally accessible, the other ambulant disabled. Decorative sliding steel screens at the entrance doors display an impression of the 19th century map of the park.
Outside the gravelled courtyard, Leinster granite kerbs enclose colourful insect friendly mixed planting beds. Parasols provide shelter for those sunny or damp days. Beyond the Tearoom the park is ever busy with children playing, dog lovers and those looking to relax in one of Dublin’s verdent gems.
Completed in Autumn 2024
Builders: Tolmac Contractors

















