THE MEDICAL PRACTICE
Over a period of 25 years we have been engaged to carry out various conservation, refurbishment and expansion works on this Protected Structure, a busy medical practice in Sligo town. The building is part of an important terrace on The Mall built in c.1835.
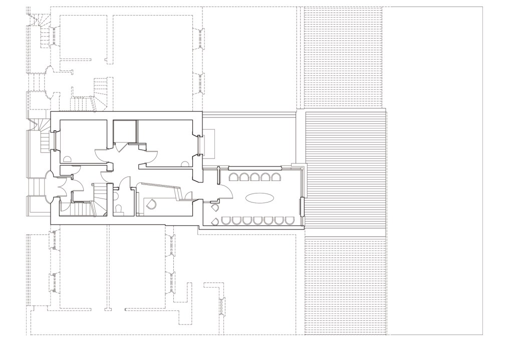
Over the 25 years of the medical practice expansion program new consulting rooms, nurses room, secretarial offices, new reception and waiting room have been provided. The latest phase responded to Covid 19 Protocols to meet the requirements for social distancing and more rigorous hygiene standards. In the next phase a new platform lift will be inserted into the house to facilitate universal accessibility. A future phase will include the conversion of the old stables below into a new two bed room apartment.
The last building phase saw the development of a new extension at the rear of the building. As this is a very busy practice it was critical there was the minimum disruption during the construction periods. The contractor was allowed a maximum of 4 days shut down. To achieve this our approach was to design a light timber frame extension which could be assembled off site, delivered to site and built on top of the existing lower ground floor walls without disrupting the practice or the existing apartment below. It was in effect plugged into the back of the house. The extension is clad in a mix of timber and lime render to reflect this fact and also to differentiate it from the main building. The waiting room has a large picture window to the south elevation providing views over the garden and river beyond.
Reflecting the practice consciousness for their patients wellbeing the structure was designed to be fully breathable ensuring a clean healthy internal environment as well as the use of ecological and sustainable building materials: cedar wood mcladding, hemp insulation and natural paints.
The most recent internal fit-out works was in response to Covid 19. Across all 3 consulting rooms the centrally placed desks were replaced with new doctor workstations and the old standalone wash stations replaced with double sink wash stations. The materials chosen were formica faced birch ply for the ease of cleaning and the clean contemporary finish.













