RAGLAN ROAD
Mid-terrace two-2 bay three-storey over lower ground floor structure, constructed c.1855, having three storey return extension to the rere, having 2 storey flat roofed extension behind constructed mid-late 20th century; short gravelled parking to front, short back garden and lower patio. Interior re-modelled mid-20th century for multiple residential units. Rere garden subdivided, mews building demolished, new 2-storey dwelling built latter part 20th century.
This report is an architectural appraisal of No.27 Raglan Road, its proposed refurbishment and the program for the conservation of the existing building.
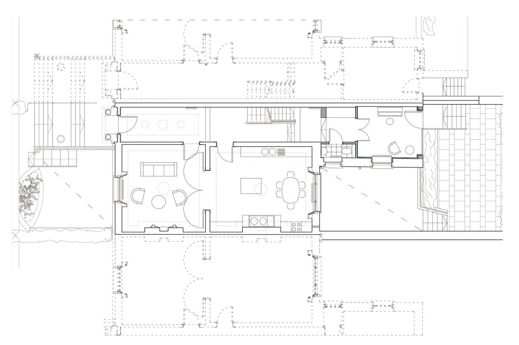
Dorman Architects sought planning permission for the Change of Use from multiple residential use back to single family residential Use; the demolition of rere return 2 storey extension; alterations to the layout including new openings, relocated kitchen, utility and bathrooms; Re-instatement of principal first floor rooms; Protection from moisture ingress through roofs, walls and floors; Re-instatement of sliding timber sash windows; fabric thermal performance improval works; Re-landscaped rere garden; new services including solar panels and general conservation works.
Approach to Conservation Works The design of the alterations and refurbishment were intended to be compatible with the character of the protected structure and sensitive to conservation principles. The works were a combination of essential internal alterations to the lower ground floor and minor alterations to the ground floor and first floors to adapt the house to family use along with essential refurbishment works to prevent further damage to the existing fabric by ingress of moisture. No works were carried out that would adversely affect the character or endanger the integrity of the protected structure. We set out to respect and retain the essence of the original plan form by restoring and maintaining the primary spaces and room proportions. We conserved all internal and external historical features of quality and interest including all timber floors, all original internal and external joinery including the shutters and door linings, the staircase and balustrades and all dado rails and original decorative plasterwork. Before any works commenced we carried out investigative works to determine the condition of concealed fabric. This allowed us determine the extent of any deterioration of the fabric or structural failure.


















