TWO SPORTS CHANGING BUILDING UPGRADES
These two sports buildings are located in LeFanu Park, Ballyfermot and Bushy Park, Terenure, Dublin. By utilising robust lively materials and re-opening the blocked up windows the dilapidated changing rooms were transformed from uninviting cold spaces to warm and welcoming facilities.
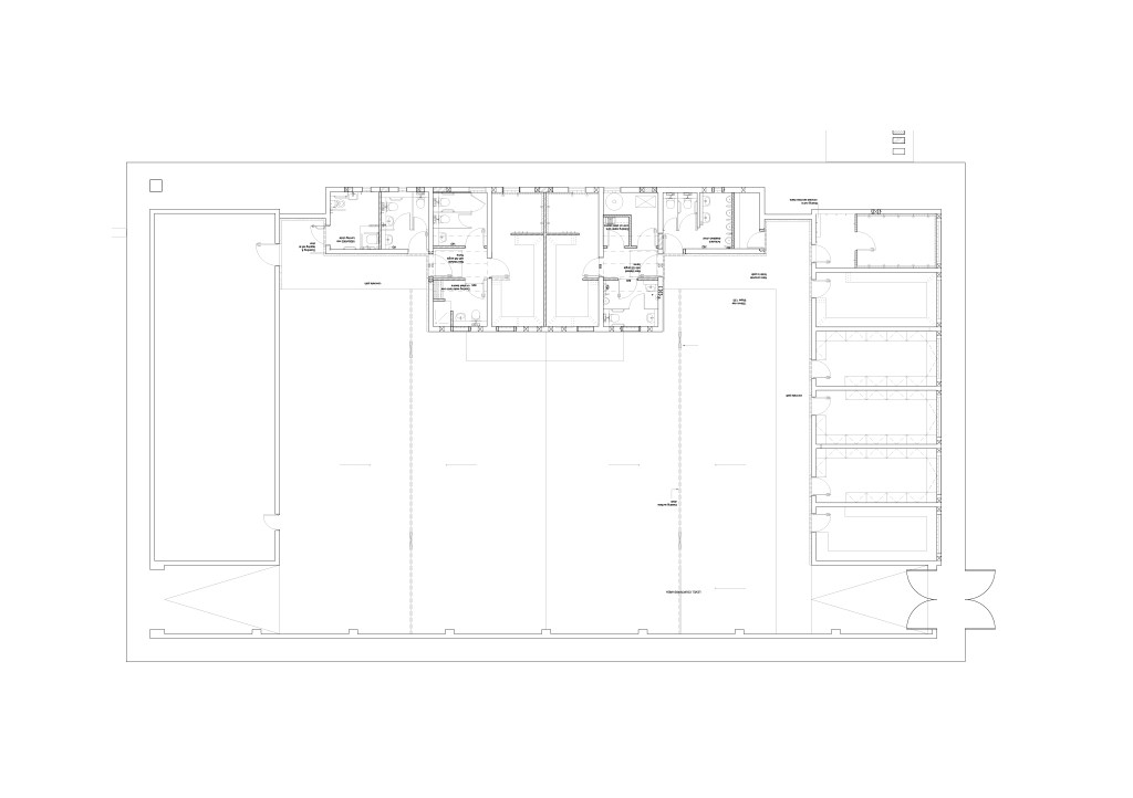
Integrated design team leader for the project management of the refurbishment and alterations of two 40 year old city park football changing buildings. Both buildings has been upgraded to provide for male and female players, referees, storage and sanitary facilities. Both facilities are universally accessible including accessible changing rooms. Rainwater harvesting has been installed in order to conserve water.
The buildings were completed in 2012 and 2014 respectively.












